Verkocht:Onderlangs 25, 6812 CE Arnhem - Foto
Verkocht
+86

Onderlangs 25 6812 CE Arnhem

  • Herenhuis
  • 8 kamers
  • 4 slaapkamers
  • Bouwjaar 1911
  • 495 m² perceeloppervlakte
  • 319 m² gebruiksoppervlakte
  • G Energielabel G

Beschrijving

Herenhuis met karakter, enorme potentie en uitzicht op de Rijn!

Aan de Onderlangs woon je op een van de meest markante plekken van Arnhem. Direct aan de Rijn, met vrij zicht over het water en de uiterwaarden. Het landschap verandert mee met het daglicht, terwijl het stadscentrum op loopafstand ligt. Dit herenhuis uit 1911, met de huisnummers 25–26 (niet kadastraal gesplitst), combineert omvang, karakter en de kans om op een toplocatie volledig naar eigen maatstaf te moderniseren.

Het pand heeft een sterke basis: hoge plafonds, royale kamers en vier volwaardige woonlagen. Binnen is modernisering gewenst, wat juist de ruimte biedt om een woning te creëren die volledig aansluit bij hedendaagse kwaliteit en comfort.
Binnen enkele minuten wandel je naar de binnenstad, het station of de Rijnkade. Het is een zeldzame combinatie van vrijheid, uitzicht en stedelijke bereikbaarheid. Voor wie zoekt naar volume, vrijheid en een authentieke uitstraling, is dit een unieke kans.

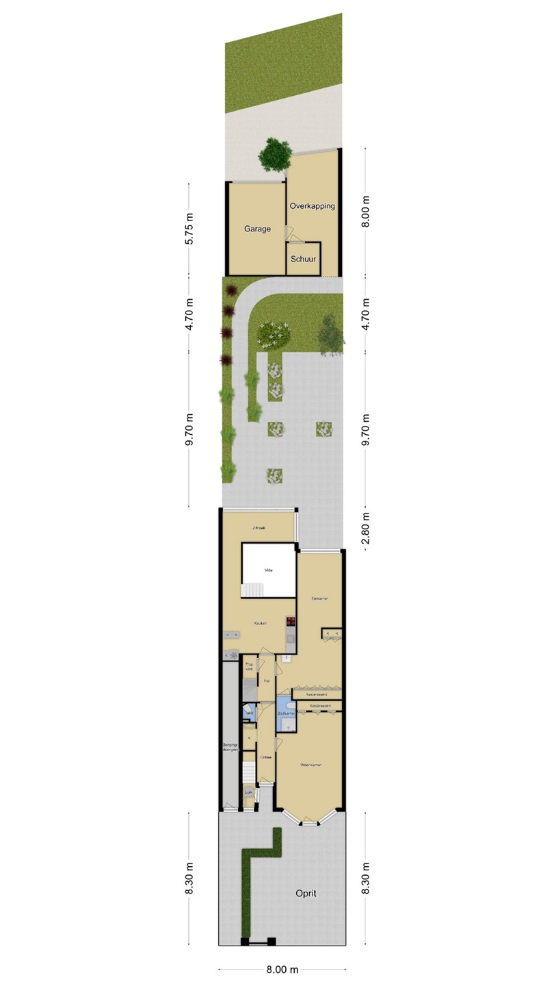
Indeling
Souterrain
Deze verdieping combineert leefruimtes met keldergedeelten. Er zijn meerdere kamers, een badkamer, een bijkeuken en een wasruimte. Door de directe tuinverbinding en openslaande deuren is het een praktische en veelzijdige woonlaag.

Begane grond
Het huis heeft twee entrees: één voor het woongedeelte op de begane grond en één voor het bovengelegen deel. Intern staan beide niveaus met elkaar in verbinding, waardoor het geheel als één woning functioneert.

Via de entree van de benedenwoning bereik je een ruime hal met toegang tot meerdere woonkamers, een badkamer en de keuken. De vide brengt hoogte en licht in het interieur en biedt een fraai uitzicht over de Rijn en de uiterwaarden. De leefruimtes vormen samen een royale laag met uitstekende mogelijkheden voor een eigentijdse indeling.

Eerste verdieping
Via de tweede entree op de begane grond of binnendoor heb je toegang tot de eerste verdieping. Deze verdieping biedt meerdere slaapkamers, een doucheruimte, toilet, een tweede keuken en een woonkamer met balkon en toegang tot een groot dakterras. De etage vormt daarmee een complete en volwaardige woonlaag.

Tweede verdieping
Hier bevinden zich drie slaapkamers, een extra keuken en een tweede dakterras. Het uitzicht over de uiterwaarden is indrukwekkend; een plek waar rust en openheid samenkomen midden in de stad.

Tuin
Aan de voorzijde is er parkeergelegenheid op eigen terrein.
Wat dit huis bijzonder maakt is de diepe, zonnige achtertuin gesitueerd op het zuiden en gelegen aan de Rijn. Achterin staan een garage, berging en een overkapping. Aan de achterzijde is eveneens de mogelijkheid tot parkeren op eigen terrein.

Bijzonderheden
• Statig herenhuis (1911) met dubbele huisnummers (niet kadastraal gesplitst)
• Circa 318 m² woonoppervlakte
• Perceel van 495 m², diepe tuin op het zuiden gelegen met vrij uitzicht op de Rijn
• Twee dakterrassen en een balkon
• Garage, berging en overkapping
• Parkeren op eigen terrein
• Uitstekende mogelijkheden voor renovatie, uitbreiding of herontwikkeling

Let op
– As is where is-clausule
– Asbestclausule
- Ouderdomsclausule

Kaart

Kenmerken

Overdracht

Vraagprijs
€ 995.000,- k.k.
Status
Verkocht
Aanvaarding
In overleg
Aangeboden sinds
Vrijdag 14 november 2025
Laatste wijziging
Maandag 9 februari 2026

Bouw

Type object
Herenhuis, woonhuis, tussenwoning
Soort bouw
Bestaande bouw
Bouwjaar
1911
Dakbedekking
Bitumen
Leisteen
Type dak
Samengesteld
Isolatievormen
Gedeeltelijk dubbel glas

Oppervlaktes en inhoud

Perceeloppervlakte
495 m²
Woonoppervlakte
319 m²
Inhoud
1.265 m³
Oppervlakte overige inpandige ruimten
38 m²
Oppervlakte externe bergruimte
25 m²
Oppervlakte gebouwgebonden buitenruimte
46 m²
Tuinoppervlakte
355 m²

Indeling

Aantal bouwlagen
3 (en 1 kelder)
Aantal kamers
8 (waarvan 4 slaapkamers)

Locatie

Ligging
Aan water
In woonwijk
Vrij uitzicht

Tuin

Type
Achtertuin
Hoofdtuin
Ja
Oriëntering
Zuiden
Staat
Normaal
Tuin 2 - Type
Achtertuin
Tuin 2 - Staat
Normaal
Tuin 3 - Type
Voortuin
Tuin 3 - Staat
Normaal

Energieverbruik

Energielabel
G

Uitrusting

Aantal parkeerplaatsen
4
Warm water
CV-ketel
Geiser
Tuin aanwezig
Ja
Heeft schuur/berging
Ja

Kadastrale gegevens

Kadastrale aanduiding
Arnhem P 5373
Perceeloppervlakte
495 m²
Omvang
Geheel perceel
Eigendomsituatie
Eigen grond