Verkocht onder voorbehoud:Prümelaan 13, 6824 HP Arnhem - Foto
Verkocht onder voorbehoud
+64

Prümelaan 13 6824 HP Arnhem € 549.500,- k.k.

  • Appartement
  • 3 kamers
  • 2 slaapkamers
  • Bouwjaar 1915
  • 119 m² gebruiksoppervlakte
  • F Energielabel F

Beschrijving

Deze zeer gunstig gelegen benedenwoning in een prachtig historisch herenhuis ademt charme en biedt comfort en ruimte: met twee ruime slaapkamers en meer dan 118 m2 woonoppervlak is dit huis voor meerdere doelgroepen geschikt. Samen met de fantastische tuin zijn alle ingrediënten aanwezig voor heerlijk stads woongenot.

De Prümelaan is een zeer charmante, statige straat met veel groen, midden in de Arnhemse wijk Velperweg en omgeving. Dit is een zeer gewilde buurt met volop voorzieningen. Diverse scholen én hartje Arnhem zijn op slechts 10 fietsminuten te bereiken. Genieten van de natuur? Zowel park Angerenstein als park Klarenbeek liggen om de hoek.

Maak snel een afspraak om deze karakteristieke woning te bezichtigen!

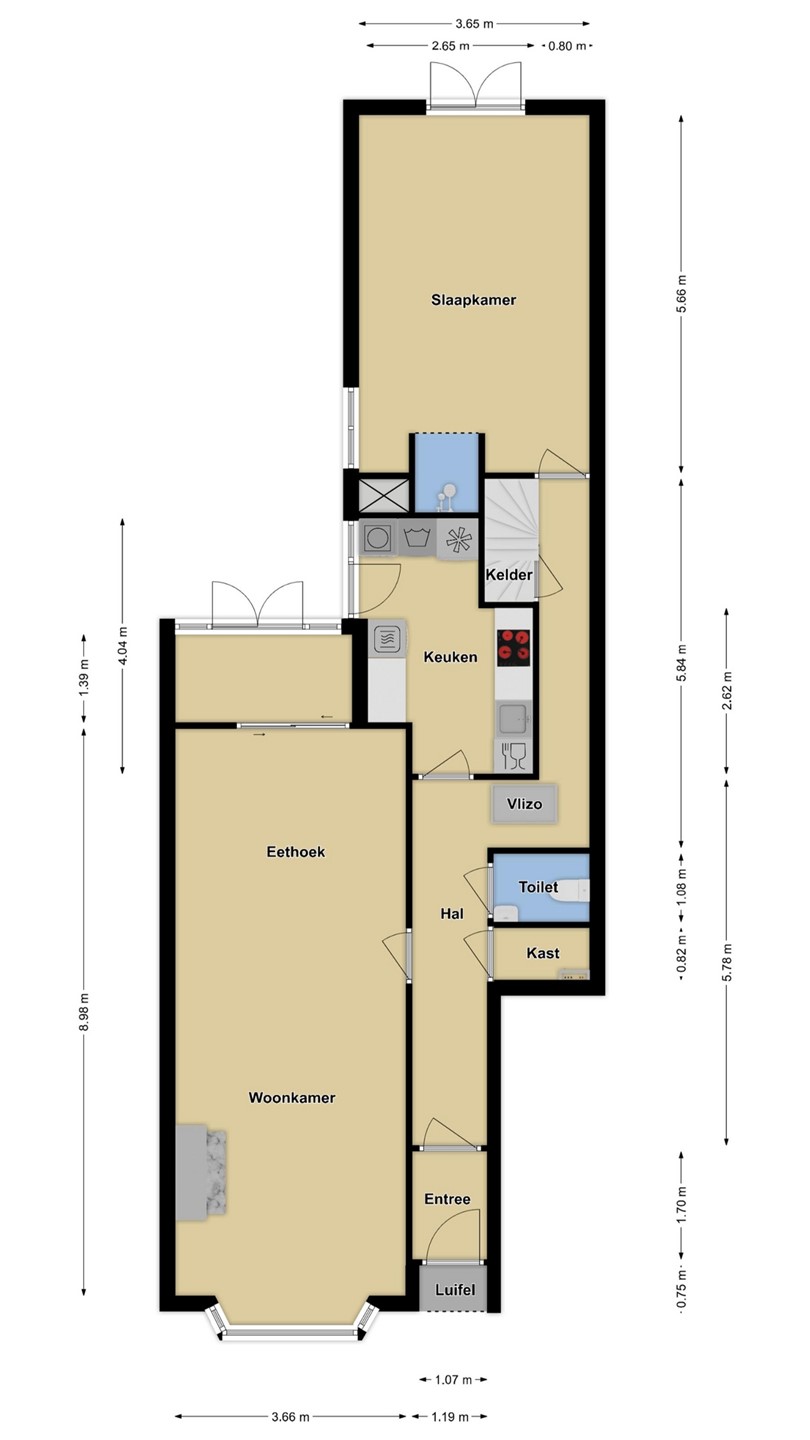
Indeling
De royale voortuin geeft de woning meteen een heerlijk aanzicht: hier kom je ergens bínnen! Via de entree kom je in de lange hal. Daar is ook een aparte kastruimte en een toilet te vinden. Aan de linkerzijde ligt de ruime woonkamer/eetkamer. Die is ruim en heeft veel karakter, met balkenplafonds en een knusse open haard bij de zithoek. En natuurlijk kijk je mooi weg richting de voortuin en de straat.

Aan de tuinkant is er een kleine serre, die ook als thuiswerkplek kan worden gebruikt. Via de openslaande tuindeuren loop je vervolgens zo de tuin in. Dit deel van het terras heeft een overkapping, perfect voor tuinplezier in alle seizoenen.

De separate keuken met veel opbergruimte ligt in het midden van de begane grond. Deze is neutraal afgewerkt, met moderne inbouwapparatuur en natuurstenen werkbladen. Hier zijn ook de aansluitingen voor wasmachine en droger. Ook vanuit de keuken heb je toegang tot de tuin; wel zo handig voor gezellige zomerse etentjes.

Aan de achterzijde van de woning vind je de eerste slaapkamer. Deze is zeer ruim en heeft een eigen douche. Prettige bijkomstigheid: via deze slaapkamer wandel je eveneens meteen de tuin in. Op deze plek is wederom een terrasoverkapping te vinden. Dat is pas aangenaam wakker worden met de eerste koffie van de dag!

Via de trap op de begane grond heb je toegang tot de kelder. Deze biedt de nodige ruimte voor opslag. Ook de cv-ketel is hier te vinden.

Eerste verdieping
Via de overloop kom je op de tweede slaapkamer, gelegen aan de achterzijde van de woning. Dit is weer een rustige slaapkamer van aangenaam formaat en een meer dan prettig groen uitzicht op de achtertuin.
Aangrenzend ligt de badkamer, in neutrale kleuren afgewerkt en met een prettige lichtinval. Er is een wastafel, douche, ligbad en toilet.

Via de vlizotrap bereik je de bergzolder, ideaal voor extra opbergruimte.

Tuin
De prachtige diepe achtertuin is werkelijk subliem. Met diverse terrassen, een vijver en gevarieerde beplanting is het hier ultiem genieten van je eigen groene omgeving. Naast de twee overkappingen die grenzen aan zowel de woonkamer als de slaapkamer, is er achter in de tuin nog een stenen schuur, bestaande uit twee gedeeltes en een overkapping. Ook is er een achterom, perfect voor je fiets.

Bijzonderheden

• Parkeergelegenheid in de straat.

ENGLISH VERSION

Charming city home with a spacious garden, close to Arnhem city centre

Description

This beautifully located double ground-floor apartment in a stunning historic townhouse exudes charm while offering both comfort and space. With two generously sized bedrooms and over 118 m2 of living space, this home is suitable for a variety of buyers. Together with the fantastic garden, all the ingredients are present for delightful city living.

The Prümelaan is a charming, stately street with plenty of greenery, situated in the heart of the Velperweg neighborhood in Arnhem. This is a highly sought-after area with excellent amenities. Several schools and Arnhem city centre are just a 10-minute bike ride away. Love nature? Both Angerenstein Park and Klarenbeek Park are just around the corner.

Schedule a viewing soon to experience this characterful home for yourself!

Layout

Ground floor

The spacious front garden immediately gives the home a warm and welcoming feel. Entering through the front door, you step into a long hallway, where you'll find a separate storage closet and a toilet. To the left, the large living and dining area features exposed ceiling beams and a cozy fireplace in the seating area. The windows provide a lovely view of the front garden and the street.

At the rear of the home, there is an ideal space for a small home office. French doors lead directly to the garden. The covered terrace ensures you can enjoy outdoor living in all seasons.
The separate kitchen is centrally located on the ground floor, providing ample storage space. It is finished in a neutral style with modern built-in appliances and natural stone countertops. Here, you'll also find connections for a washing machine and dryer. The kitchen has direct access to the garden—perfect for summer dining outdoors.

At the back of the house, the first bedroom is very spacious and includes a private shower. A bonus: this bedroom also opens directly onto the garden, where another covered terrace awaits—an ideal spot to start your day with a morning coffee.

A staircase from the ground floor leads to the basement, offering additional storage space and housing the central heating system.

First floor

From the landing, you access the second bedroom, located at the rear of the home. This peaceful and well-sized room offers a wonderful view of the lush back garden.

Adjacent to the bedroom is the bathroom, which is neutrally styled and benefits from plenty of natural light. It features a sink, shower, bathtub, and toilet.

A loft ladder leads to the attic, perfect for extra storage.

Garden

The beautifully landscaped, deep back garden is truly spectacular. With multiple terraces, a pond, and a variety of plants, this is the perfect place to enjoy your own green oasis. In addition to the two covered terraces adjacent to the living room and bedroom, there is a brick garden shed at the back of the garden, consisting of two sections and an additional covered area. A back entrance provides easy access for bicycles.

Additional Information

• Street parking available.

Kaart

Kenmerken

Overdracht

Vraagprijs
€ 549.500,- k.k.
Status
Verkocht onder voorbehoud
Aanvaarding
In overleg
Aangeboden sinds
Donderdag 1 januari 2026
Laatste wijziging
Donderdag 19 februari 2026

Bouw

Type object
Appartement, benedenwoning
Woonlaag
1e woonlaag
Soort bouw
Bestaande bouw
Bouwjaar
1915
Isolatievormen
Dubbel glas

Oppervlaktes en inhoud

Woonoppervlakte
119 m²
Inhoud
524 m³
Oppervlakte overige inpandige ruimten
26 m²
Oppervlakte externe bergruimte
15 m²
Oppervlakte gebouwgebonden buitenruimte
39 m²
Tuinoppervlakte
260 m²

Indeling

Aantal bouwlagen
2 (en 1 kelder)
Aantal kamers
3 (waarvan 2 slaapkamers)

Locatie

Ligging
Aan park
In centrum

Tuin

Type
Achtertuin
Hoofdtuin
Ja
Tuin 2 - Type
Achtertuin
Tuin 3 - Type
Voortuin

Energieverbruik

Energielabel
F

CV ketel

Combiketel
Ja

Uitrusting

Warm water
CV-ketel
Badkamervoorzieningen
Douche
Ligbad
Toilet
Wastafelmeubel
Tuin aanwezig
Ja
Heeft schuur/berging
Ja

Vereniging van Eigenaren

Ingeschreven bij de KvK
Ja
Opstal verzekering
Ja

Kadastrale gegevens

Kadastrale aanduiding
Arnhem C 5441
Omvang
Appartementsrecht of complex
Eigendomsituatie
Eigen grond